Design-Konzept & Entwurf | Doppelhaushälfte | 120 m2 | München
ARCHITEKTUR
Haus M
Zusammenarbeit mit Ben Weiser
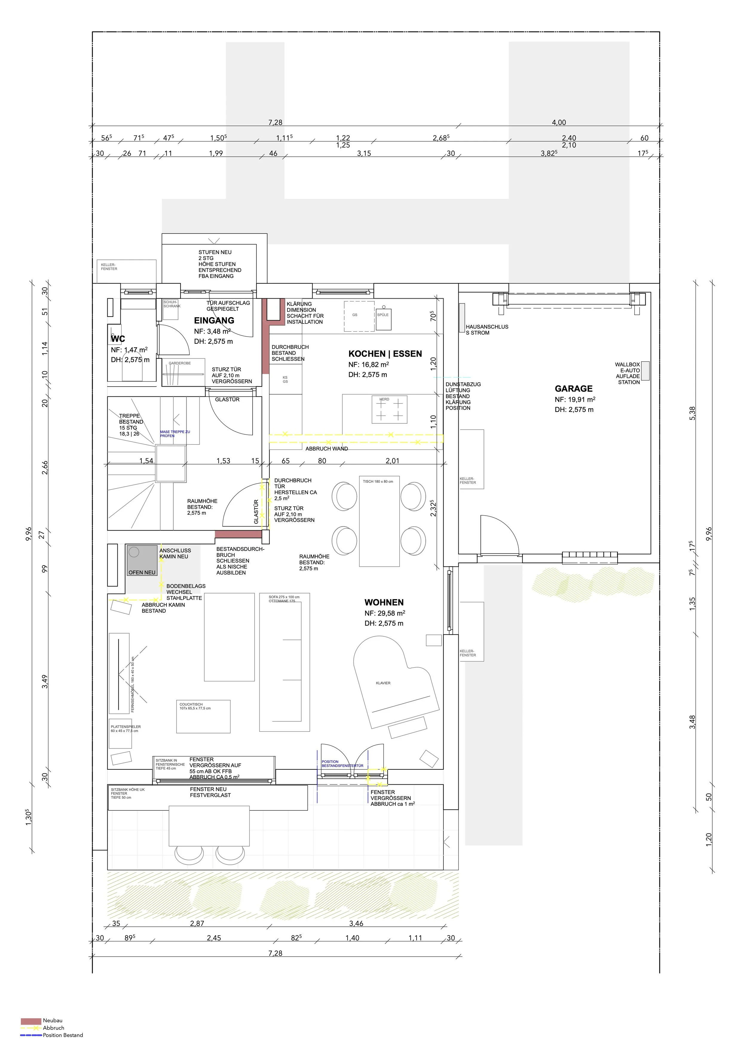
Die ehemals geschlossene Küche öffnet sich nun als moderne Kochzeile zum Wohnraum, während das einfach verglaste Wohnzimmerfenster einem großzügigen, energetisch sanierten Sitzfenster weicht. Die Terrassentür wurde erweitert, um mehr Offenheit und Nutzungskomfort zu schaffen, und eine elegante Holztreppe ersetzt die schweren Steinstufen. Im Keller sorgen eine geschickt zonierte Waschküche, praktische Abstellflächen und die neu integrierte Sauna für Funktionalität und Komfort.
Ein Zuhause für die nächste Generation
Das Elternhaus aus den 1970er Jahren entsprach mit seiner Raumaufteilung und Gestaltung nicht den Wohnvorstellungen einer jungen Familie. Gemeinsam wurde ein durchdachtes Design- und Grundrisskonzept entwickelt, das zentrale gestalterische Fragen klärte und weiterführte.
Das Erscheinungsbild der Doppelhaushälfte hat sich stark verändert, und ist doch immer noch das Elternhaus. Neue Fensteröffnungen lassen nun später folgende Umnutzungen zu.
Das Gebäude aus den 70er Jahren wurde ins heute übersetzt
Haus M
ARCHITEKTUR
